Modern Living in Nga Roto Estate



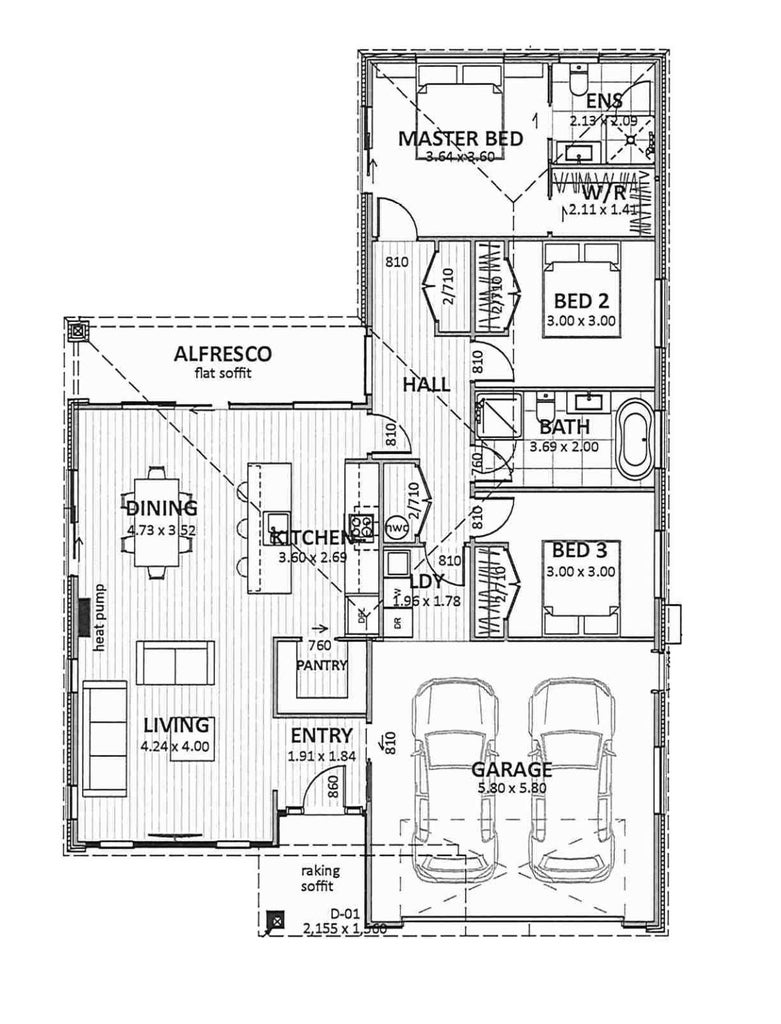
This contemporary 165m² home, situated on a 469m² north-facing section, offers a perfect blend of style and functional design. Featuring three spacious bedrooms, two bathrooms (including a master ensuite), and a large double garage, this property is designed for comfortable family living.
This is a truly "all-inclusive" build. Your new home comes ready for you to move in, with all the following included: Landscaping & Fencing: Including a 1.8m neighbour-friendly timber fence, hydroseed lawn, and selected plantings. Quality Finishes: Driveway and paths are completed, and the interior features window coverings throughout. Premium Upgrades: This package includes stone benchtops for a sleek kitchen finish and a DVS home ventilation system for a healthy living environment.
Modern Comforts: Enjoy thermally improved Low E double glazing and a heat pump to ensure year-round climate control.
Prime Location - Located in the sought-after Nga Roto Estate, you are perfectly positioned for convenience: Shopping: Just a short distance from the Kokomea Park Shopping Centre. Lifestyle: Close to local amenities while maintaining a quiet residential feel.
Build with Confidence: Barrett Homes is proud to be one of New Zealand’s most trusted builders 2021-2025, consistently recognised with industry awards for quality and excellence
Materials
Please note that the material images are for illustrative purposes only and may not directly represent the final product. For exact details, please refer to the specifications in the contract.

Innova Duragroove 150mm
Joinery - White

Vertical Cedar w/board Cladding

White Painted Brick
View our floorplan

Areas:
Similar listings
We build homes - Honestly
With every home, we’re building our reputation for uncompromised design, superior service and honest delivery. It’s no surprise we were voted Most Trusted 2021, 2022, 2023, 2024 and most recently 2025!
OUR PROCESSVisit our showhomes





















.jpg)
.png)




.png)



.png)






.png)

.jpg)


.png)


%20Front%20View%20Final-min.png)





.jpg)

.png)
.png)

.png)

1.jpg)



.png)







.jpg)


.png)

.jpg)






.png)















.jpg)


