Elevate Your Everyday at Mission Hills, Napier



Step into a home that’s more than just a blueprint — it’s a bold expression of lifestyle, location, and legacy.
Barrett Homes proudly presents a meticulously crafted residence at Mission Hills, Napier — where architectural finesse meets the exceptional setting of Stage 1A in this master-planned community.
This home stands out for its striking exterior, blending INNOVA Stratum cladding with vertical timber weatherboards to deliver modern style with timeless charm. Inside, raking ceilings and daylighting zones create a bright, airy atmosphere that shifts beautifully with the seasons. Native plantings, generous decks, and curated landscaping offer seamless outdoor connection — perfect for relaxing, entertaining, and enjoying nature.
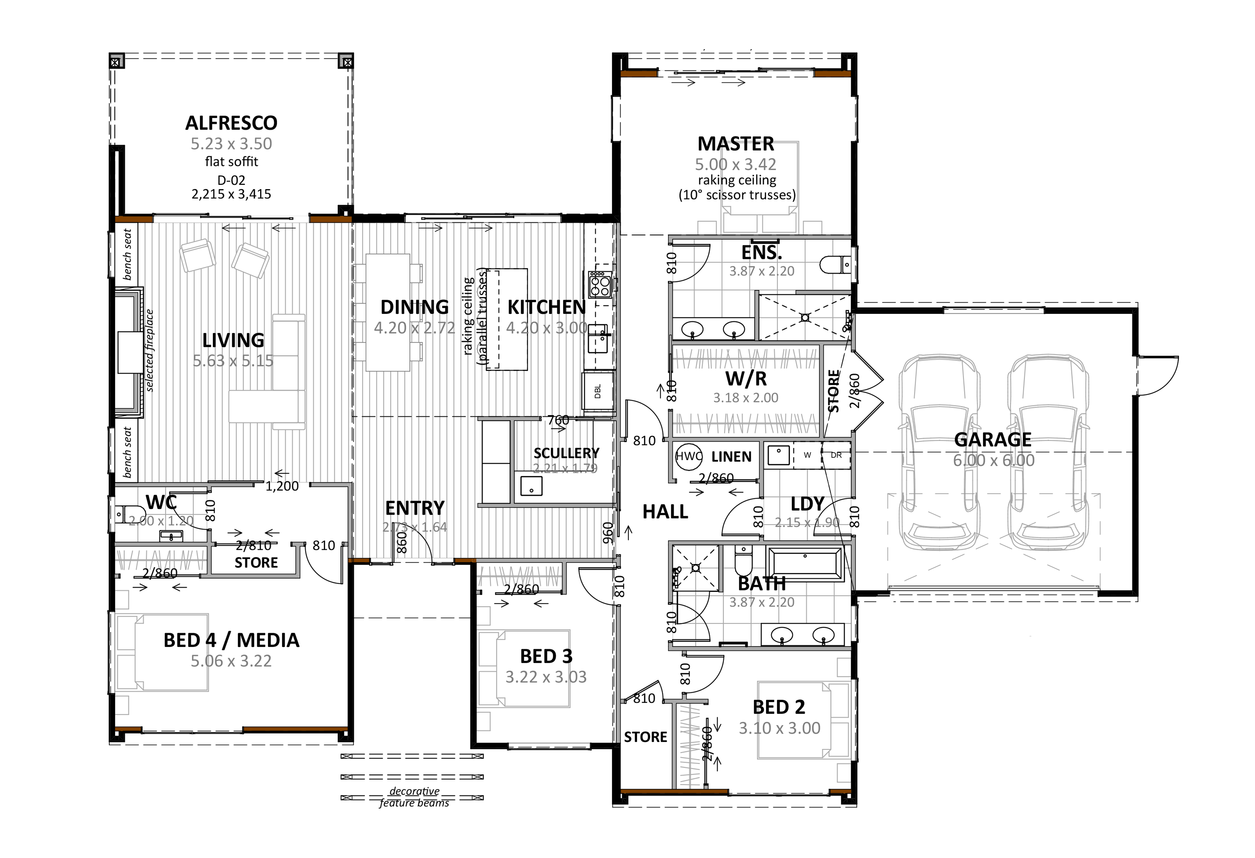
Designed with real life in mind, the layout includes a scullery, an alfresco zone, and a versatile media room or fourth bedroom. A feature fireplace with built-in bench seating adds warmth and character, anchoring the living space with a cosy touch.
Mission Hills is redefining residential excellence in Napier — a legacy for Hawke’s Bay, and a lifestyle for you.
Ready to make it yours? Let’s talk next steps — or explore how this concept can be tailored to your vision.
Materials
Please note that the material images are for illustrative purposes only and may not directly represent the final product. For exact details, please refer to the specifications in the contract.

Innova Stratum Vertical Cladding

Joinery - Black

Metal Roofing - NZS Colorsteel Endura
View our floorplan

Areas:
Similar listings
We build homes - Honestly
With every home, we’re building our reputation for uncompromised design, superior service and honest delivery. It’s no surprise we were voted Most Trusted 2021, 2022, 2023, 2024 and most recently 2025!
OUR PROCESSVisit our showhomes





















.jpg)
.png)




.png)



.png)






.png)

.jpg)


.png)


%20Front%20View%20Final-min.png)





.jpg)

.png)
.png)

.png)

1.jpg)



.png)







.jpg)


.png)

.jpg)






.png)















.jpg)


